 
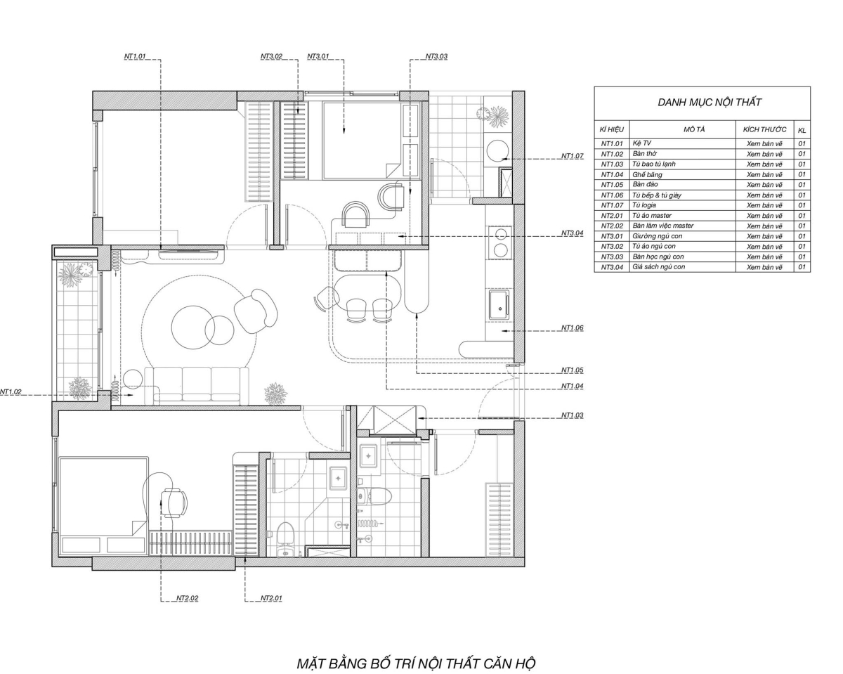
  Căn hộ có diện tích 80m2, tọa lạc tại một tòa chung cư thuộc Long Biên (Hà Nội). Công năng chính gồm phòng khách, bếp - ăn và hai phòng ngủ. Nhóm thiết kế lựa chọn tinh thần thiết kế hiện đại làm chủ đạo, không thiên về sự tối giản cứng nhắc, mà mềm mại và gần gũi qua các chi tiết bo cong, chất liệu tự nhiên và bảng màu ấm. Điểm đặc biệt nằm ở cách kết hợp các mảng màu theo tinh thần Color Block - kết hợp trên hai màu sắc trong công trình, nhưng ở sắc độ dịu nhẹ như vàng mù tạt, xanh olive, trắng kem. Các mảng tường giúp phân chia thị giác, tạo cảm hứng trẻ trung cho toàn bộ không gian.
 
  Những đường cong xuất hiện xuyên suốt trong kiến trúc, từ góc tường, tủ bếp, bàn ăn đến hệ tủ tivi... giúp không gian trở nên uyển chuyển và thân thiện hơn. Phòng khách được bố trí linh hoạt với ghế ngồi gần cửa sổ. Thiết kế lớp rèm voan trắng và rèm dày hai lớp, giúp điều tiết ánh sáng theo từng thời điểm trong ngày.
 
  Không gian bếp - ăn liên thông, nổi bật với tủ bếp gỗ sồi tự nhiên kết hợp gạch ốp tường xanh bóng, tạo hiệu ứng ánh sáng phản chiếu.
 
  Thiết kế sàn bếp gạch caro giúp phân vùng chức năng rõ ràng mà vẫn đảm bảo sự liền mạch trong tổng thể chung. Khu vực bàn ăn với ghế gỗ bo tròn phối vải bọc màu tương phản, cùng băng ghế sát tường có phần tựa lưng cách điệu theo hình gợn sóng.
 
  Bếp nấu kết nối trực tiếp với logia, giúp thông gió, thoát mùi tốt.
 
  Hệ tủ âm tường với khoang lưu trữ rộng giúp không gian luôn gọn gàng.
 
  Hai phòng ngủ đều có cửa sổ lớn giúp tối ưu ánh sáng.
 
  Bàn làm việc và khu thay đồ tích hợp trong phòng ngủ chính.
 
  Phòng ngủ con với nội thất mang tone màu theo sở thích của trẻ.
 
  Hệ tủ - bàn học liền tường tối ưu không gian sử dụng.
 
  Mặt bằng bố trí nội thất. Căn hộ được thiết kế, thi công cải tạo trong 45 ngày, chi phí khoảng 320 triệu đồng.
 
                             
                     
                         Thích
 Thích
                 
                                             
                                             
                                             
                                             
                                             
                                             
                                             
                                             
                                             
                                             
                                             
                                             
                                             
                                             
                                             
                                            