Theo Báo Hà Tĩnh, ngày 12/11 vừa qua, Hội đồng Bồi thường, Hỗ trợ, Tái định cư dự án Khu đô thị mới Kỳ Trinh đã tổ chức họp tại 4 tổ dân phố Quyền Hành, Quyền Thượng, Tây Trinh và Hoàng Trinh để thông tin về việc triển khai công tác giải phóng mặt bằng dự án tới người dân.
Tại buổi làm việc, Chủ tịch Hội đồng Bồi thường, Hỗ trợ, Tái định cư cho biết, công tác giải phóng mặt bằng luôn là khâu khó do liên quan trực tiếp đến quyền lợi của người dân.
Vì vậy, việc triển khai phải dựa vào sự đồng thuận của nhân dân, đồng thời đảm bảo giải thích rõ ràng, công khai minh bạch từng bước và xử lý kịp thời những vướng mắc phát sinh.

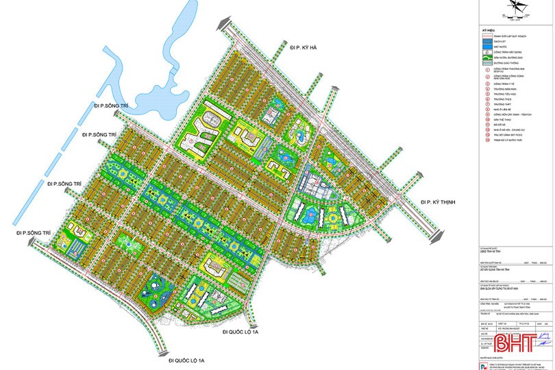
Quy hoạch dự án Khu đô thị mới Kỳ Trinh. Nguồn ảnh: Báo Hà Tĩnh
Hiện phường đã phân công cán bộ phối hợp với tổ dân phố và các hộ dân triển khai kiểm kê đất đai, tài sản.
Dự kiến trong tháng 11/2025 sẽ hoàn thành công tác kiểm kê, kiểm đếm; sau đó thực hiện các bước tiếp theo như họp xác nhận nguồn gốc đất đai; lập phương án bồi thường để công khai thông tin giải phóng mặt bằng; tổ chức chi trả và bàn giao mặt bằng cho nhà đầu tư trong thời gian sớm nhất.
Dự án Khu đô thị mới Kỳ Trinh phải giải phóng mặt bằng hơn 1.400 thửa đất nông nghiệp và 13 thửa đất ở, đất vườn của khoảng 600 hộ dân tại 4 tổ dân phố.
Cụ thể, 68,7ha đất nông nghiệp; 0,19ha đất ở, đất vườn; 8,35ha đất thủy lợi, đất giao thông do UBND phường quản lý; cùng 6,88ha đã được giải phóng mặt bằng từ các dự án đường trước đây.
Lãnh đạo địa phương cho biết, nhiều hộ dân đã cam kết phối hợp để công tác giải phóng mặt bằng triển khai đúng tiến độ, góp phần hình thành một khu đô thị hiện đại, nâng cao đời sống cộng đồng.
Hiện công tác giải phóng mặt bằng của dự án đang ở giai đoạn đầu, song những nỗ lực của cấp ủy, chính quyền và cán bộ cơ sở phường Sông Trí đã tạo nền tảng quan trọng để người dân hiểu rõ lợi ích lâu dài, từng bước đồng thuận, qua đó bảo đảm tiến độ bàn giao mặt bằng cho nhà đầu tư.

Phối cảnh dự án Khu đô thị mới Kỳ Trinh. Nguồn ảnh: Báo Hà Tĩnh
Được biết, dự án Khu đô thị mới Kỳ Trinh (nay thuộc phường Sông Trí) đã được Ban Quản lý Khu kinh tế tỉnh chấp thuận chủ trương đầu tư tại Quyết định số 83/QĐ-KKT ngày 29/5/2025.
Dự án có tổng mức đầu tư hơn 8.000 tỷ đồng, quy mô 84,12 ha gồm 2.596 căn nhà ở thương mại liền kề, 8 tòa nhà ở xã hội cao 10 tầng và hệ thống hạ tầng kỹ thuật - xã hội đồng bộ như trường học, bệnh viện, công viên, bãi đỗ xe, nhà văn hóa, trung tâm thương mại…
Nhà đầu tư thực hiện dự án là CTCP Đầu tư và Xây dựng Thái Sơn thuộc Tập đoàn Vingroup. Dự kiến dự án sẽ được khởi công vào đầu năm 2026.
Đây là dự án có ý nghĩa quan trọng, góp phần hoàn thiện hạ tầng kỹ thuật và hình thành diện mạo đô thị mới cho phường Sông Trí trong tiến trình đô thị hóa.