Giữa nhịp sống hối hả của Thủ đô, căn hộ 87m2 trong một chung cư trên đường Phạm Văn Đồng sau khi được cải tạo đã khoác lên mình diện mạo mới - khang trang, hiện đại nhưng vẫn giữ được nét ấm áp, an yên. Không chỉ là một công trình hoàn thiện về thẩm mỹ, đây còn là minh chứng cho triết lý: "Căn nhà không chỉ là chỗ ở tiện nghi, mà là nơi chạm tới cảm xúc - nơi gia chủ bước vào và cảm thấy 'đây chính là mình'".
Căn hộ được thiết kế với tông màu trắng và nâu gỗ chủ đạo, mang đến cảm giác tinh tế, nhẹ nhàng và gần gũi. Phòng khách và phòng bếp được nối liền nhau, xóa bỏ các vách ngăn truyền thống, tạo nên không gian mở thông thoáng và liền mạch. Những chi tiết nội thất được bo tròn khéo léo, vừa đảm bảo an toàn, vừa mang lại cảm giác hiền hòa, mềm mại - đúng tinh thần "căn nhà có thể thở" mà đội ngũ thiết kế hướng tới.


Không gian ấm cúng khi bước vào căn hộ 87m2 vừa thực hiện cải tạo, thiết kế
Phòng ngủ lớn tiếp nối cùng bảng màu chủ đạo, nổi bật với cửa sổ rộng đón ánh sáng tự nhiên, giúp không gian luôn tràn đầy năng lượng và sinh khí. Ánh sáng, chất liệu và cách bài trí được phối hợp hài hòa, tạo nên nơi nghỉ ngơi bình yên giữa phố thị. Những chi tiết như rèm vải thô, tủ âm tường gọn gàng, sàn gỗ ấm màu hay chiếc ghế thư giãn bên khung cửa sổ đều góp phần định hình phong cách sống tối giản, hiện đại nhưng vẫn đong đầy cảm xúc.

Phòng bếp liền với phòng khách tối ưu diện tích

Nội thất khu vực bếp với tông màu trắng, nâu be chủ đạo

Khu vực bàn ăn cũng được thiết kế đầy tinh tế

Tông màu dịu nhẹ mang lại cảm giác thư thái

Nội thất với nhiều chi tiết bo tròn
Chia sẻ về quá trình thực hiện, kiến trúc sư Trịnh Đình Quyền chia sẻ, cải tạo nhà ở luôn là một hành trình đầy bất ngờ. Trong thi công, không ít lần đội ngũ phát hiện những "ẩn họa" tiềm ẩn phía sau lớp sơn tưởng như hoàn hảo: tường thấm nứt, dây điện mục, đường ống cấp thoát nước rò rỉ hoặc tắc nghẽn. Bên cạnh đó, chính mong muốn hoàn thiện không gian của chủ nhà cũng khiến bản vẽ và dự toán thay đổi liên tục từ việc thêm tủ, đổi gạch cho đến nâng cấp thiết bị nội thất để phù hợp hơn với nhu cầu sinh hoạt.

Không gian phòng ngủ


Một chiếc giường được thiết kế gấp tối ưu diện tích sử dụng


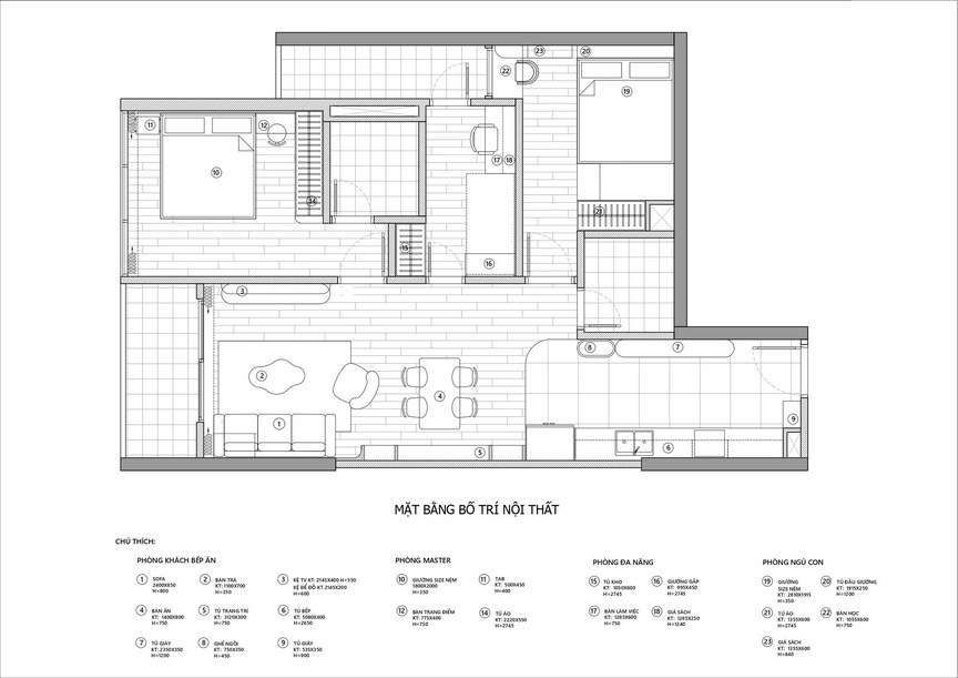
Mặt bằng bố trí nội thất của căn hộ
Theo anh, điều quan trọng không phải là cố tránh phát sinh, mà là biết cách quản lý chúng một cách chủ động. "Kinh nghiệm của chúng tôi là luôn dự trù thêm 5-10% chi phí so với tổng dự toán ban đầu, giống như mang theo khoản 'phòng thân' khi đi xa. Đồng thời, cần phân định rõ đâu là hạng mục cố định, đâu là phần có thể linh hoạt thay đổi, để gia chủ chủ động trong mọi quyết định", anh chia sẻ.
Kiến trúc sư cũng nhấn mạnh, một dự án cải tạo thành công luôn bắt đầu từ sự đồng hành giữa gia chủ và người thiết kế: "Khi hai bên coi nhau như đồng đội, cùng chia sẻ mục tiêu và lắng nghe nhau, mọi phát sinh đều có thể được giải quyết nhẹ nhàng, thậm chí trở thành cơ hội để căn nhà hoàn thiện hơn so với bản vẽ ban đầu," anh nói.
Từ góc nhìn chuyên môn, việc cải tạo không gian sống hiện nay không chỉ hướng đến yếu tố "đẹp hơn", mà còn phải phản ánh được tinh thần sống của chủ nhân. Một căn nhà lý tưởng không cần quá cầu kỳ hay xa hoa, mà là nơi mang đến năng lượng tích cực, sự thư thái và cảm giác thuộc về chính mình sau mỗi ngày trở về.
Đơn vị thi công: Lavia Concept VN